close
2008/5/9 ~ 5/11
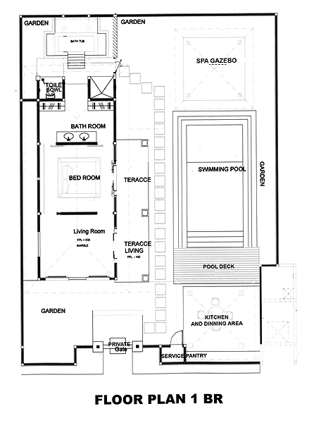
先來看一下整個Villa的平面圖,這個圖是從Ulin Villa網站中擷取出來的,one bedroom villa floor.
來看看房間內的樣子吧! 整個長型的房間分為三個部份,客廳,臥室,盥洗室連接著後面庭院的大浴缸.
一推開滑門進到客廳,好涼爽喔!原來裡面已經開好了冷氣,真是消暑呀!兩人座的小沙發,地上鋪著四方型的小地毯,一座電視櫃和書櫃,沒有太多的裝飾,往上瞧還可以看到整個木頭柱子天花板,看起來很原始,櫃子上有DVD目錄,可以跟櫃台租借來看,還有LG的小喇叭,呵呵...我們沒幾乎放CD來聽聽...
推開第二道門,進到臥室,最著名的Bali公主床,薄紗圍繞在四邊,床上還擺著用乾草和椰子編著小動物,呵呵...很厲害喔!拿起來想把它拆開,真怕裝不回去!!
呵呵,下午服務人員來點蚊香和噴殺蟲劑的時候,順便還把薄紗放下來...真是飄逸浪漫,不過睡起來,這個床比較硬,還是比較喜歡The Laguna Resort的床,軟軟的又有彈性!呵呵...
推開下一個門是盥洗室,大大的房間裡有兩個洗手台,衣櫃,行李架,呵呵...往戶外看,最吸引我們的戶外浴池,好大喔!!
馬桶和淋浴區都在戶外,呵呵,雖然有樹木遮住,高聳的圍牆,呵呵,總覺得這裡又不是郊區,還是有點怕怕的啦!不過看到這個大浴缸,就什麼都忘了,放了一池子的水,將身子泡在水裡,真舒服,呵呵,不過放水的速度有點慢,等到快睡著了啦!
備品的部份,有手工肥皂,還有竹編脫鞋,雖然看起來醜醜的,但是穿起來很舒服喔!
早餐的部份是前一天先點的,有三種可以選擇,西式,印尼炒飯,印尼炒麵,對我來說蠻愛吃這裡的印尼炒飯的,有一點特殊的香味和辣味,是我的菜啦!!
餐點還附有咖啡和果汁,當然最不能缺少的是水果囉!不過這裡的水果切法都一樣呢!真是厲害!
順便一提的是住宿的第二天下午還有下午小點喔!是印尼的點心,很像是潤餅皮裡面包椰絲,吃起來還不錯,不過只有一對,真是可惜!
住在這裡的兩天,想睡的時候就睡,躺在泳池旁邊的躺椅看著沁藍的天,熱的時候就下到水裡,好放鬆的...
Shelly
先來看一下整個Villa的平面圖,這個圖是從Ulin Villa網站中擷取出來的,one bedroom villa floor.
來看看房間內的樣子吧! 整個長型的房間分為三個部份,客廳,臥室,盥洗室連接著後面庭院的大浴缸.
一推開滑門進到客廳,好涼爽喔!原來裡面已經開好了冷氣,真是消暑呀!兩人座的小沙發,地上鋪著四方型的小地毯,一座電視櫃和書櫃,沒有太多的裝飾,往上瞧還可以看到整個木頭柱子天花板,看起來很原始,櫃子上有DVD目錄,可以跟櫃台租借來看,還有LG的小喇叭,呵呵...我們沒幾乎放CD來聽聽...
推開第二道門,進到臥室,最著名的Bali公主床,薄紗圍繞在四邊,床上還擺著用乾草和椰子編著小動物,呵呵...很厲害喔!拿起來想把它拆開,真怕裝不回去!!
呵呵,下午服務人員來點蚊香和噴殺蟲劑的時候,順便還把薄紗放下來...真是飄逸浪漫,不過睡起來,這個床比較硬,還是比較喜歡The Laguna Resort的床,軟軟的又有彈性!呵呵...
推開下一個門是盥洗室,大大的房間裡有兩個洗手台,衣櫃,行李架,呵呵...往戶外看,最吸引我們的戶外浴池,好大喔!!
馬桶和淋浴區都在戶外,呵呵,雖然有樹木遮住,高聳的圍牆,呵呵,總覺得這裡又不是郊區,還是有點怕怕的啦!不過看到這個大浴缸,就什麼都忘了,放了一池子的水,將身子泡在水裡,真舒服,呵呵,不過放水的速度有點慢,等到快睡著了啦!
備品的部份,有手工肥皂,還有竹編脫鞋,雖然看起來醜醜的,但是穿起來很舒服喔!
早餐的部份是前一天先點的,有三種可以選擇,西式,印尼炒飯,印尼炒麵,對我來說蠻愛吃這裡的印尼炒飯的,有一點特殊的香味和辣味,是我的菜啦!!
餐點還附有咖啡和果汁,當然最不能缺少的是水果囉!不過這裡的水果切法都一樣呢!真是厲害!
順便一提的是住宿的第二天下午還有下午小點喔!是印尼的點心,很像是潤餅皮裡面包椰絲,吃起來還不錯,不過只有一對,真是可惜!
住在這裡的兩天,想睡的時候就睡,躺在泳池旁邊的躺椅看著沁藍的天,熱的時候就下到水裡,好放鬆的...
Shelly
全站熱搜